Casa a due piani con pensilina sopra la porta d’ingresso preceduta da alcuni gradini, tre camere da letto e un ampio disimpegno al piano superiore. La camera padronale è dotata di bagno privato che comprende vasca da bagno indipendente, doppio lavabo e doccia. Secondo bagno con vasca da bagno, doccia e doppio lavabo. Piano terra rialzato con vetrate d’angolo nella zona giorno, nell’area pranzo e in cucina, e finestre a tutta altezza, concepito come zona giorno open space con cucina/pranzo/soggiorno e porte scorrevoli sulla terrazza. Camera supplementare dotata di bagno privato con doccia, locale tecnico e ingresso. Tetto a due falde con ampi sporti di gronda (80 cm), pendenza di 22°.
*Esempio di progetto realizzato con personalizzazioni.

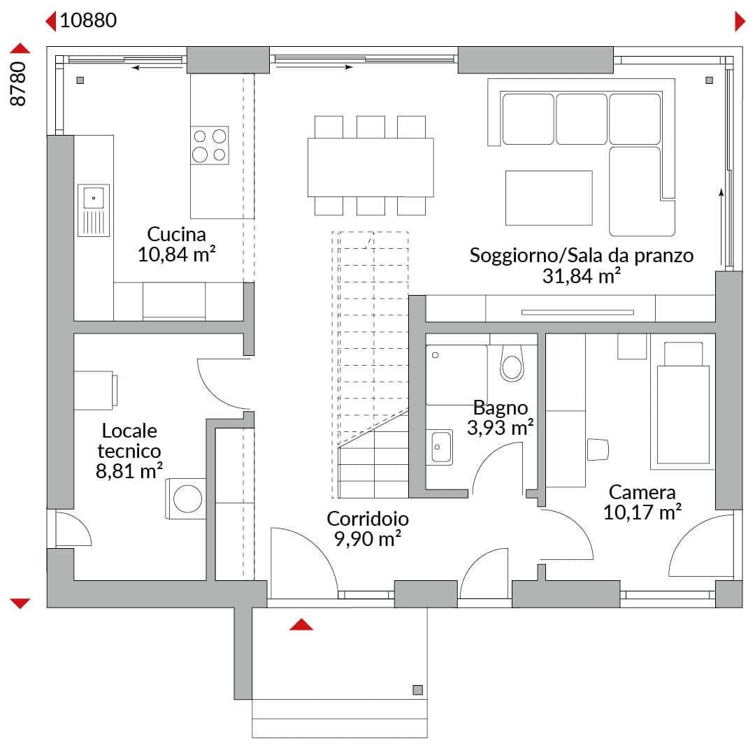
Planimetrie
Planimetrie complete di tutti i piani
Benvenuti nella linea abitativa S-Line di Danwood: l'eccellenza nel design e nell'esecuzione costruttiva. Questa linea abitativa esclusiva si distingue non solo per l'architettura unica, ma anche per lo speciale design funzionale, che garantisce comfort e un'elevata qualità abitativa. Ogni abitazione della linea S-Line è caratterizzata da una serie di dotazioni speciali studiate per assicurare un'esperienza abitativa di lusso.

I nostri amici e la nostra famiglia pensano che sia una casa meravigliosa. Siamo davvero fortunati ad avere un’abitazione così bella da condividere con i nostri nipoti e con tutta la famiglia. Sì, è la nostra casa per sempre, senza dubbio.