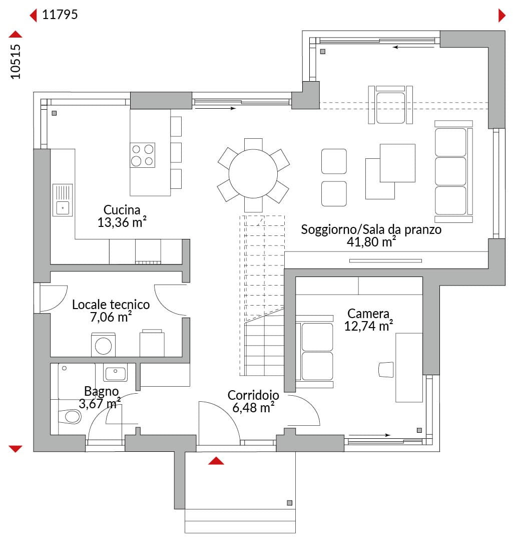
Casa a due piani con pensilina sopra la porta d’ingresso preceduta da alcuni gradini e tre camere da letto al piano superiore. Camera matrimoniale con cabina armadio e accesso diretto al bagno, dotato di vasca, doppio lavabo e doccia. Piano terra rialzato con bovindo vetrato d’angolo e finestre a tutta altezza, concepito come cucina open space con finestra d’angolo e zona giorno/pranzo con porte scorrevoli su terrazzo. Bagno di cortesia, locale tecnico, ingresso e disimpegno. Tetto a due falde con ampi sporti di gronda (60 cm), pendenza di 22°.
*Esempio di progetto realizzato con personalizzazioni.

Planimetrie
Planimetrie complete di tutti i piani
Benvenuti nella linea abitativa S-Line di Danwood: l'eccellenza nel design e nell'esecuzione costruttiva. Questa linea abitativa esclusiva si distingue non solo per l'architettura unica, ma anche per lo speciale design funzionale, che garantisce comfort e un'elevata qualità abitativa. Ogni abitazione della linea S-Line è caratterizzata da una serie di dotazioni speciali studiate per assicurare un'esperienza abitativa di lusso.

I nostri amici e la nostra famiglia pensano che sia una casa meravigliosa. Siamo davvero fortunati ad avere un’abitazione così bella da condividere con i nostri nipoti e con tutta la famiglia. Sì, è la nostra casa per sempre, senza dubbio.