Casa a due piani con ampia pensilina sopra la porta d’ingresso rialzata e bovindo d’angolo lineare; terrazza parzialmente coperta dallo sporto del tetto; tre camere da letto e disimpegno al piano superiore; camera padronale con bagno privato con vasca, doccia, doppio lavabo e cabina armadio separata; secondo bagno con doccia; piano terra rialzato con finestre a tutta altezza, concepito come zona giorno open space con cucina/pranzo/soggiorno e porte scorrevoli con accesso diretto alla terrazza; dispensa separata; bagno di cortesia; locale tecnico e disimpegno con guardaroba; tetto a due falde senza sporti; inclinazione del tetto 35°.
*Esempio di progetto realizzato con personalizzazioni.

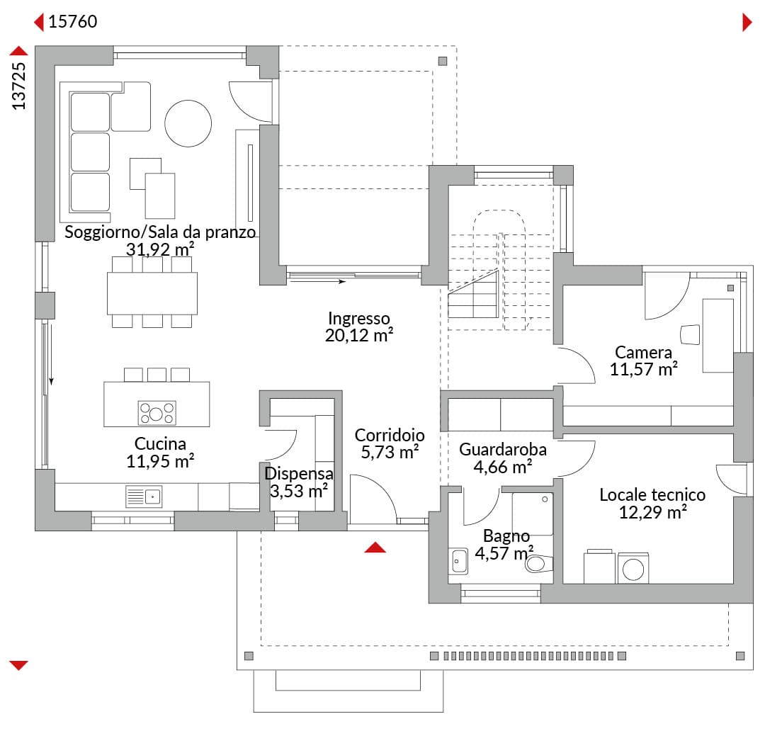
Planimetrie
Planimetrie complete di tutti i piani
Benvenuti nella linea abitativa S-Line di Danwood: l'eccellenza nel design e nell'esecuzione costruttiva. Questa linea abitativa esclusiva si distingue non solo per l'architettura unica, ma anche per lo speciale design funzionale, che garantisce comfort e un'elevata qualità abitativa. Ogni abitazione della linea S-Line è caratterizzata da una serie di dotazioni speciali studiate per assicurare un'esperienza abitativa di lusso.

I nostri amici e la nostra famiglia pensano che sia una casa meravigliosa. Siamo davvero fortunati ad avere un’abitazione così bella da condividere con i nostri nipoti e con tutta la famiglia. Sì, è la nostra casa per sempre, senza dubbio.