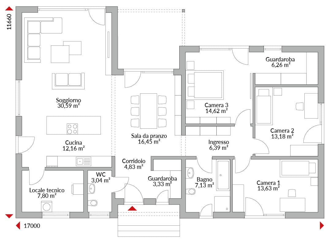
Casa su un piano con tre camere da letto con cabina armadio, guardaroba, cucina open space, bagno, bagno di cortesia, locale di servizio, ingresso e disimpegno. Pensilina integrata sopra l’ingresso e la terrazza. Tetto a quattro falde (anche detto a padiglione) con pendenza di 25°.
*Esempio di progetto realizzato con personalizzazioni.
Standard costruttivo Today
Descrizione completa della costruzione e specifiche dei materiali.

Planimetrie
Planimetrie complete di tutti i piani





Scopri la nostra collezione di oltre 140 design, chiavi in mano. Che si tratti di una casa ad un piano, di una villa con mansarda abitabile o di una villa urbana a due piani, ogni casa Danwood ad alta efficienza energetica può essere personalizzata secondo le esigenze specifiche. Abbiamo già realizzato 18.000 abitazioni — una testimonianza concreta della fiducia che i nostri clienti ripongono nelle nostre linee abitative, che comprendono anche garage e tettoie per auto prefabbricati.

I nostri amici e la nostra famiglia pensano che sia una casa meravigliosa. Siamo davvero fortunati ad avere un’abitazione così bella da condividere con i nostri nipoti e con tutta la famiglia. Sì, è la nostra casa per sempre, senza dubbio.