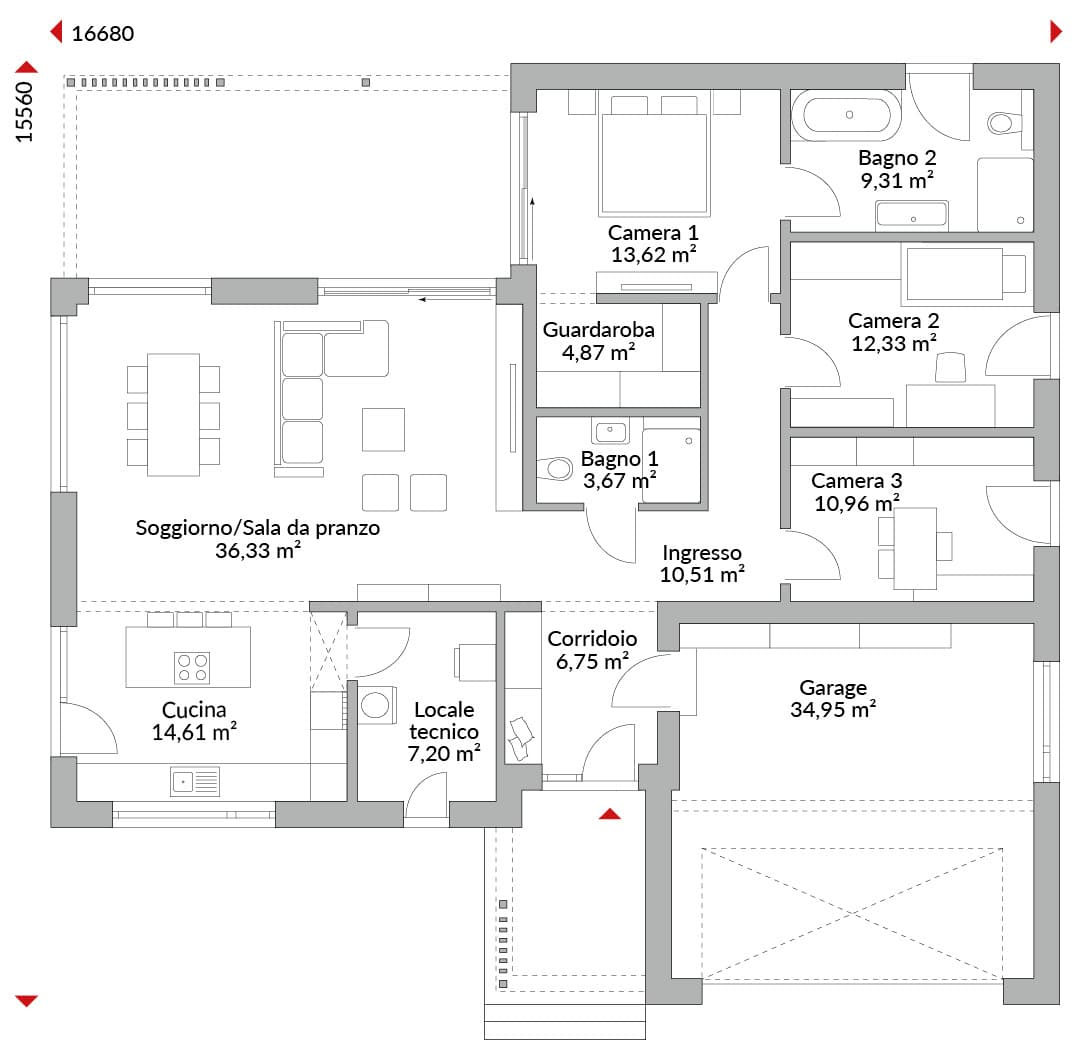
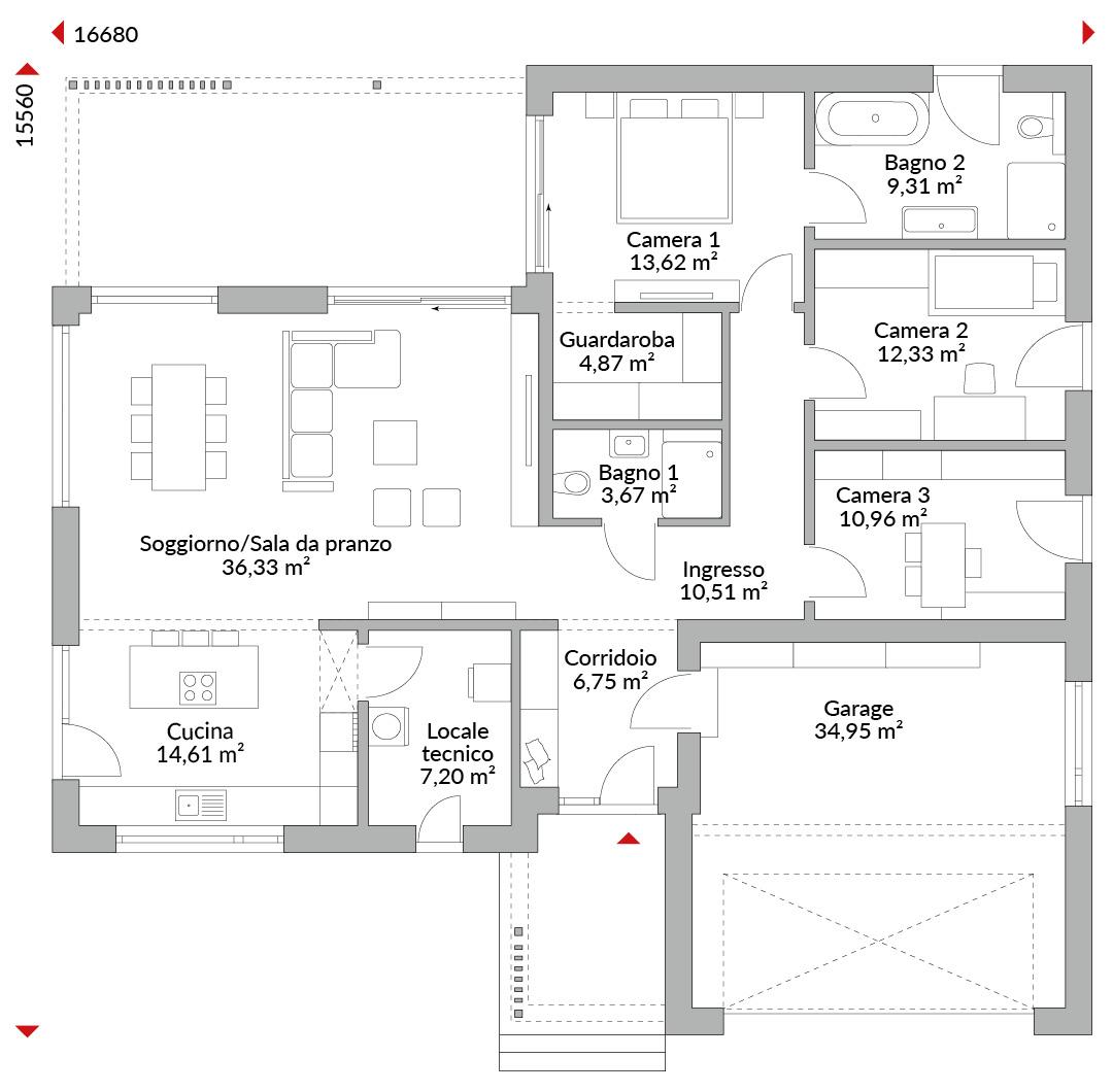
Casa su un piano con pianta ad L, tre camere da letto con ingresso completamente coperto e porta d’ingresso preceduta da alcuni gradini, con garage integrato. Garage accessibile sia dall’interno che dall’esterno. Terrazza coperta accessibile dal soggiorno tramite porte scorrevoli. Piano terra rialzato con finestre a tutta altezza, concepito come zona giorno open space con area pranzo e cucina adiacente. Locale tecnico accessibile dalla cucina e anche dall’esterno. Zona d’ingresso con disimpegno, bagno di cortesia, camera matrimoniale con bagno privato e cabina armadio. Tetto a quattro falde con ampi sporti (80 cm) e inclinazione di 22°.
*Esempio di progetto realizzato con personalizzazioni.

Planimetrie
Planimetrie complete di tutti i piani
Benvenuti nella linea abitativa S-Line di Danwood: l'eccellenza nel design e nell'esecuzione costruttiva. Questa linea abitativa esclusiva si distingue non solo per l'architettura unica, ma anche per lo speciale design funzionale, che garantisce comfort e un'elevata qualità abitativa. Ogni abitazione della linea S-Line è caratterizzata da una serie di dotazioni speciali studiate per assicurare un'esperienza abitativa di lusso.

I nostri amici e la nostra famiglia pensano che sia una casa meravigliosa. Siamo davvero fortunati ad avere un’abitazione così bella da condividere con i nostri nipoti e con tutta la famiglia. Sì, è la nostra casa per sempre, senza dubbio.