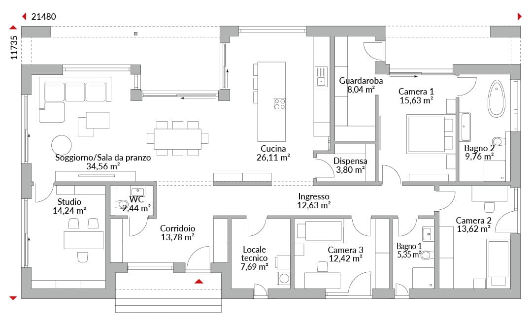
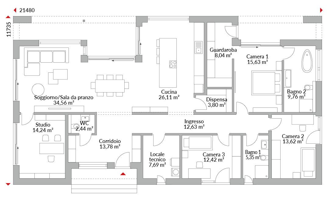
Casa su un piano con ingresso rientrante che protegge la porta d’ingresso rialzata; terrazza nella zona giardino coperta dallo sporto del tetto; zona pranzo rialzata con finestre a tutta altezza, concepita come spazio open space con cucina, dispensa, soggiorno e area pranzo, e porte scorrevoli su terrazzo e giardino; studio indipendente per gli ospiti o utile come home office; tre camere da letto, tra cui una camera padronale con bagno privato e cabina armadio; tutte le camere da letto hanno accesso diretto all’esterno; ulteriore bagno con doccia e bagno di cortesia; locale tecnico, ingresso e disimpegno.
*Esempio di progetto realizzato con personalizzazioni.

Planimetrie
Planimetrie complete di tutti i piani





Benvenuti nella linea abitativa S-Line di Danwood: l'eccellenza nel design e nell'esecuzione costruttiva. Questa linea abitativa esclusiva si distingue non solo per l'architettura unica, ma anche per lo speciale design funzionale, che garantisce comfort e un'elevata qualità abitativa. Ogni abitazione della linea S-Line è caratterizzata da una serie di dotazioni speciali studiate per assicurare un'esperienza abitativa di lusso.

I nostri amici e la nostra famiglia pensano che sia una casa meravigliosa. Siamo davvero fortunati ad avere un’abitazione così bella da condividere con i nostri nipoti e con tutta la famiglia. Sì, è la nostra casa per sempre, senza dubbio.