L’eleganza del vivere su un unico livello
Questa casa su un unico piano offre 220 metri quadrati di spazio abitativo, con ampie finestre a tutta altezza che donano luce naturale e una straordinaria sensazione di apertura. L’architettura si distingue per i pannelli di facciata di grande formato e per la terrazza coperta, che conferiscono all’insieme un carattere raffinato e armonioso.
*Esempio di progetto realizzato con personalizzazioni.

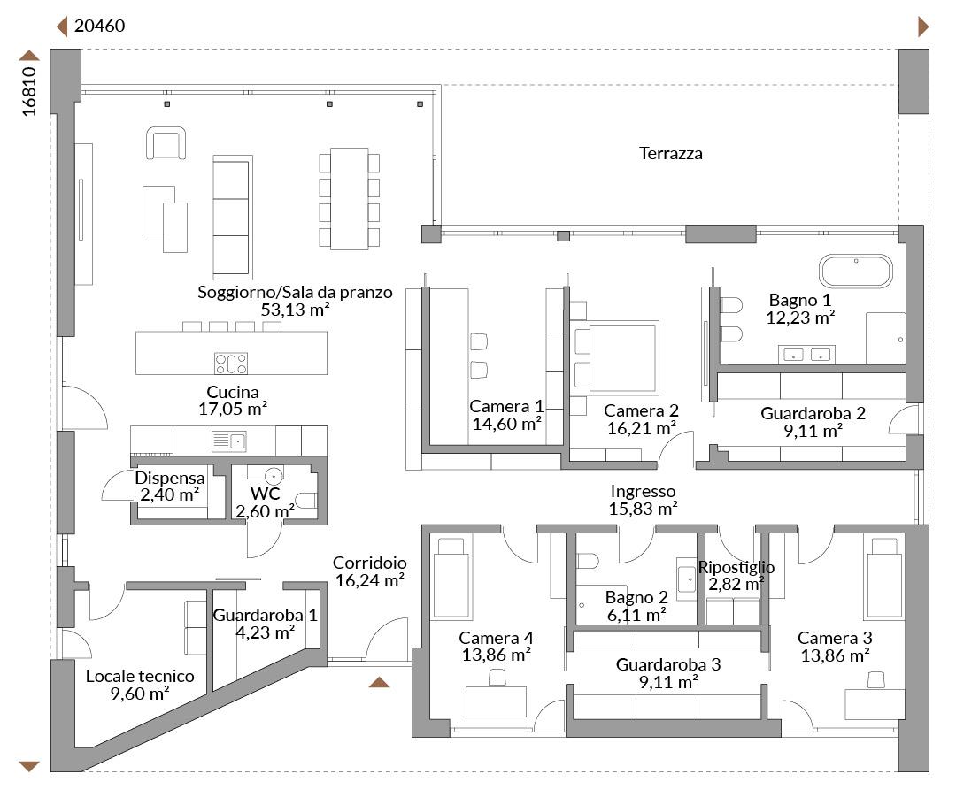
Planimetrie
Planimetrie complete di tutti i piani






I nostri amici e la nostra famiglia pensano che sia una casa meravigliosa. Siamo davvero fortunati ad avere un’abitazione così bella da condividere con i nostri nipoti e con tutta la famiglia. Sì, è la nostra casa per sempre, senza dubbio.