Casa bifamiliare con cinque camere da letto, cabina armadio, cucina, bagno, bagno di cortesia, locale tecnico ed ingresso. Pensilina d’ingresso integrata con tetto piano e parete laterale. Tetto a due falde con pendenza di 25°. Altezza muro sotto falda: 1,75 m. Abbaino con tetto piano.
*Esempio di progetto realizzato con personalizzazioni.
Standard costruttivo Today
Descrizione completa della costruzione e specifiche dei materiali.

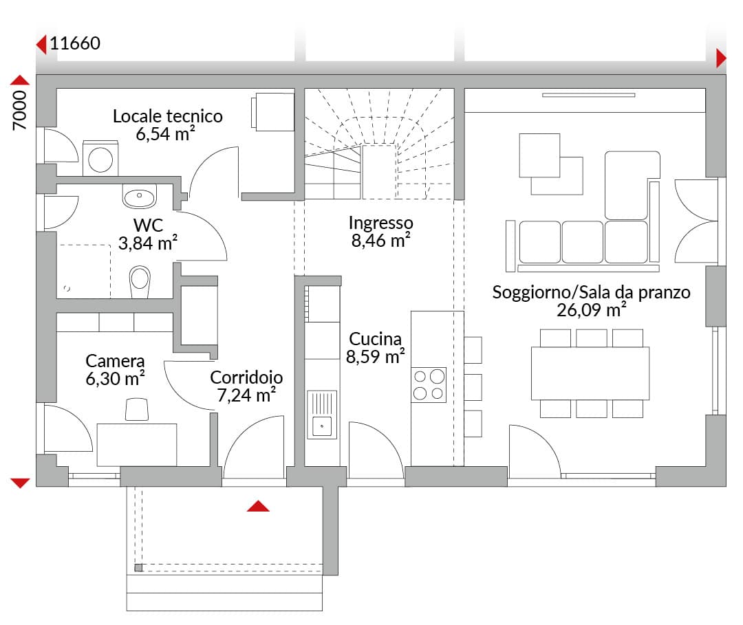
Planimetrie
Planimetrie complete di tutti i piani
Scopri la nostra collezione di oltre 140 design, chiavi in mano. Che si tratti di una casa ad un piano, di una villa con mansarda abitabile o di una villa urbana a due piani, ogni casa Danwood ad alta efficienza energetica può essere personalizzata secondo le esigenze specifiche. Abbiamo già realizzato 18.000 abitazioni — una testimonianza concreta della fiducia che i nostri clienti ripongono nelle nostre linee abitative, che comprendono anche garage e tettoie per auto prefabbricati.

I nostri amici e la nostra famiglia pensano che sia una casa meravigliosa. Siamo davvero fortunati ad avere un’abitazione così bella da condividere con i nostri nipoti e con tutta la famiglia. Sì, è la nostra casa per sempre, senza dubbio.