Casa con mansarda abitabile con ingresso coperto e porta d’ingresso leggermente rialzata. Piano terra rialzato con finestre a tutta altezza nella zona pranzo, concepito come cucina open space collegata alla zona giorno/pranzo adiacente, con vetrate d’angolo nella zona pranzo e nel soggiorno, e porte scorrevoli su terrazzo e giardino. Studio indipendente, ideale come stanza per gli ospiti o come home office, bagno di cortesia. Tre camere da letto, due delle quali con cabina armadio. Una camera dispone di bagno privato e cabina armadio. Completano la casa un bagno aggiuntivo con doccia e un ripostiglio. Locale tecnico, ingresso e disimpegno. Tetto a due falde con ampi sporti di gronda (60 cm), pendenza di 25°. Altezza muro sotto falda: 2,00 m.
*Esempio di progetto realizzato con personalizzazioni.

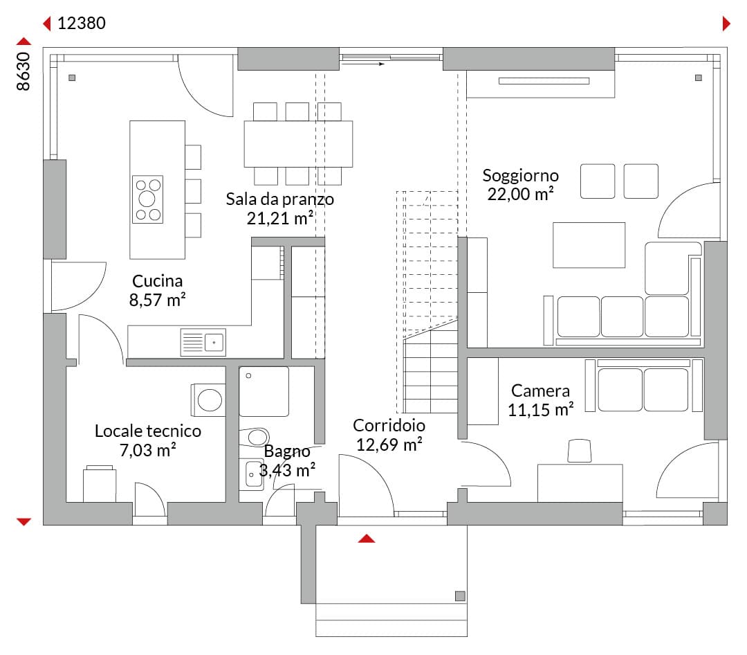
Planimetrie
Planimetrie complete di tutti i piani
Benvenuti nella linea abitativa S-Line di Danwood: l'eccellenza nel design e nell'esecuzione costruttiva. Questa linea abitativa esclusiva si distingue non solo per l'architettura unica, ma anche per lo speciale design funzionale, che garantisce comfort e un'elevata qualità abitativa. Ogni abitazione della linea S-Line è caratterizzata da una serie di dotazioni speciali studiate per assicurare un'esperienza abitativa di lusso.

I nostri amici e la nostra famiglia pensano che sia una casa meravigliosa. Siamo davvero fortunati ad avere un’abitazione così bella da condividere con i nostri nipoti e con tutta la famiglia. Sì, è la nostra casa per sempre, senza dubbio.