Hai bisogno di un po’ più di spazio? Se desideri una casa vacanze modulare con una camera da letto ma con qualche metro in più, scopri la NEXT Holiday 32 L-1 E, la versione più ampia del modello. Questa variante L è più larga di un metro, offrendo 9 m² abitabili in più. Il maggior spazio è evidente soprattutto nella camera da letto e nella zona living/pranzo, dove due ospiti extra possono dormire sul divano letto e trovare facilmente posto al tavolo da pranzo. L'angolo cottura e le finestre panoramiche sono più grandi nella versione L, rendendo questa casa vacanza minimalista perfetta per i weekend in famiglia.
*Esempio di progetto realizzato con personalizzazioni.

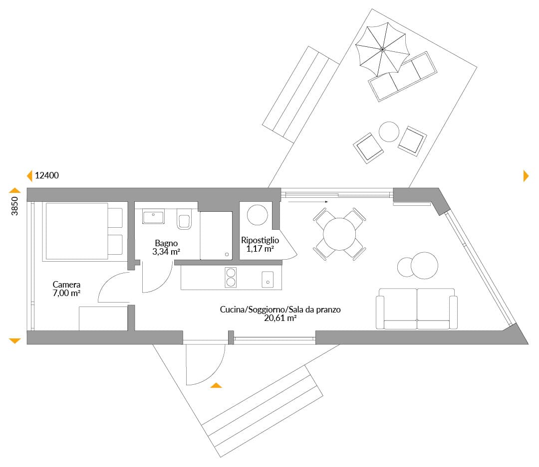
Planimetrie
Planimetrie complete di tutti i piani






I nostri amici e la nostra famiglia pensano che sia una casa meravigliosa. Siamo davvero fortunati ad avere un’abitazione così bella da condividere con i nostri nipoti e con tutta la famiglia. Sì, è la nostra casa per sempre, senza dubbio.