Aggiungere nuovi moduli: se il terreno lo consente e c’è spazio per una casa un po’ più ampia (in questo caso circa 7 metri) è possibile aggiungere un modulo laterale stretto per rendere la casa vacanze ancora più confortevole. In questo modo si ottengono una piccola camera da letto in più e un ingresso accogliente, con 11 m² aggiuntivi di superficie abitabile rispetto al modello NEXT Holiday 23 S-1 E. Le ampie pareti vetrate panoramiche offrono la sensazione di essere completamente immersi nella natura.
*Esempio di progetto realizzato con personalizzazioni.

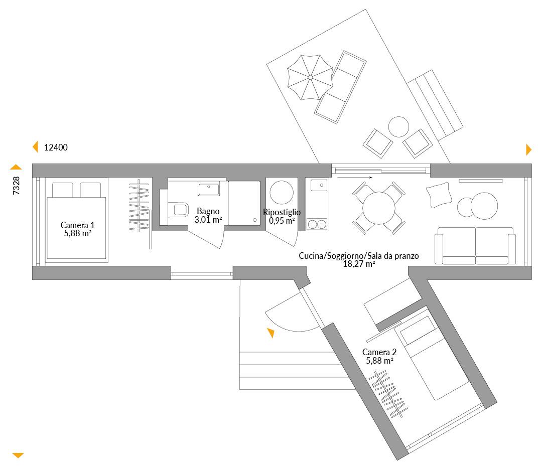
Planimetrie
Planimetrie complete di tutti i piani






I nostri amici e la nostra famiglia pensano che sia una casa meravigliosa. Siamo davvero fortunati ad avere un’abitazione così bella da condividere con i nostri nipoti e con tutta la famiglia. Sì, è la nostra casa per sempre, senza dubbio.