Più spazio, più divertimento La bellezza delle case modulari è la loro espandibilità: se si necessita di stanze extra, possono essere aggiunte. Questo è particolarmente utile nel caso di una seconda camera da letto e di un capiente armadio aggiuntivo. Dopotutto, per quattro persone – o addirittura per un massimo di sei – è necessario un po' più di spazio per vivere e riporre le cose. E nonostante i moduli S siano stretti, c'è comunque spazio per un grande tavolo dove mangiare e giocare insieme. L'aggiunta dell'ala laterale offre anche una terrazza protetta dal vento, un elemento permanente che è come avere una veranda coperta.
*Esempio di progetto realizzato con personalizzazioni.

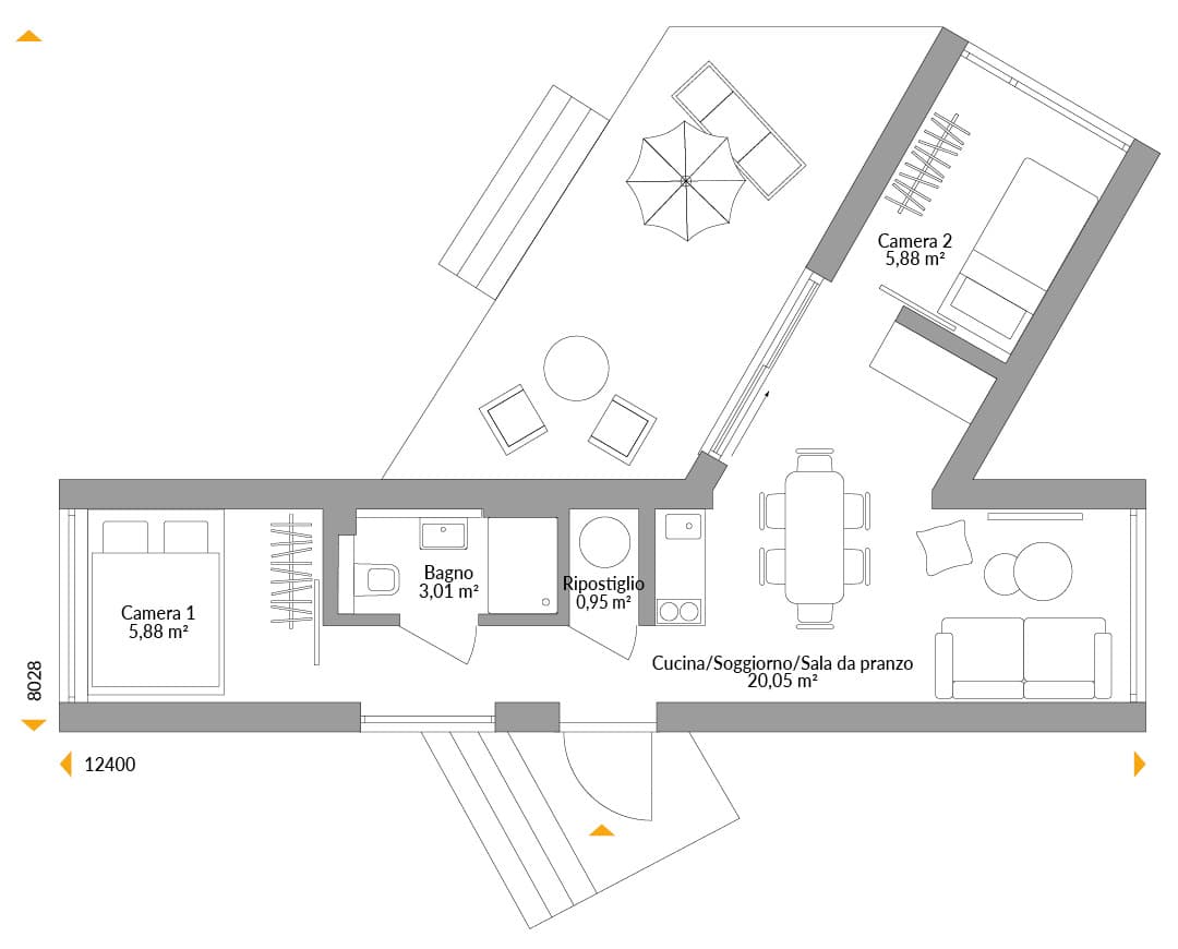
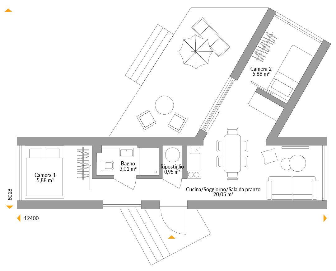
Planimetrie
Planimetrie complete di tutti i piani






I nostri amici e la nostra famiglia pensano che sia una casa meravigliosa. Siamo davvero fortunati ad avere un’abitazione così bella da condividere con i nostri nipoti e con tutta la famiglia. Sì, è la nostra casa per sempre, senza dubbio.