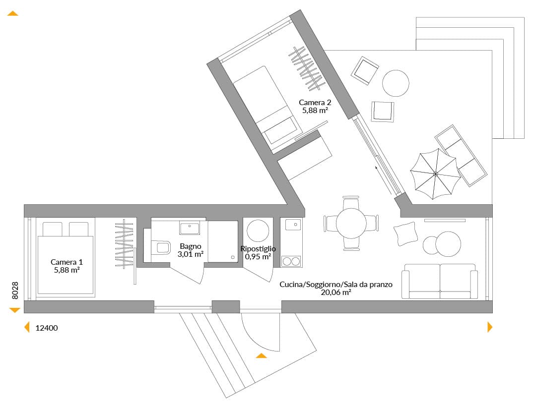
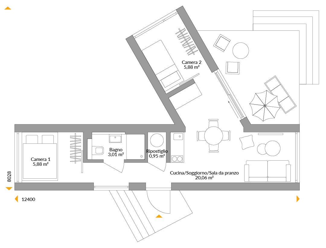
Compatta ma spaziosa: questa elegante casa vacanze NEXT, con il suo rivestimento in doghe dal tono naturale, offre quasi 36 m². È costruita utilizzando moduli S stretti, ma c'è comunque spazio per una seconda camera da letto grazie all'ala aggiuntiva ancorata. Questa soluzione aumenta anche lo spazio per i ritrovi di famiglia nella zona giorno, situata tra i due moduli. Le ampie vetrate offrono meravigliose viste in tutte e quattro le direzioni, mentre una terrazza riparata aggiunge un ulteriore spazio per la vita all'aperto.
*Esempio di progetto realizzato con personalizzazioni.

Planimetrie
Planimetrie complete di tutti i piani






I nostri amici e la nostra famiglia pensano che sia una casa meravigliosa. Siamo davvero fortunati ad avere un’abitazione così bella da condividere con i nostri nipoti e con tutta la famiglia. Sì, è la nostra casa per sempre, senza dubbio.