Lussuosa casa ad un piano
Una spaziosa casa ad un piano in stile loft con quasi metà delle pareti realizzate in vetro: puro lusso! È una splendida combinazione di spaziosità interna e vita a strettissimo contatto con la natura. L'ingresso spazioso accoglie i visitatori, una nicchia ospita un bagno di cortesia e un'area dedicata per riporre cappotti, stivali e scarpe.
*Esempio di progetto realizzato con personalizzazioni.

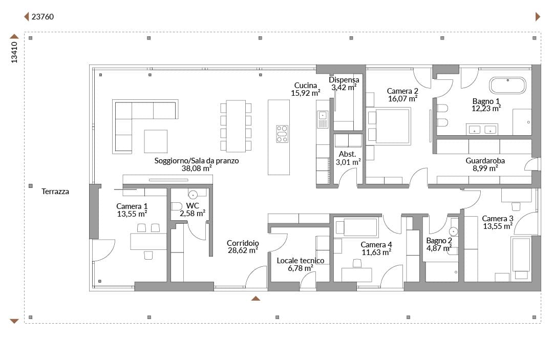
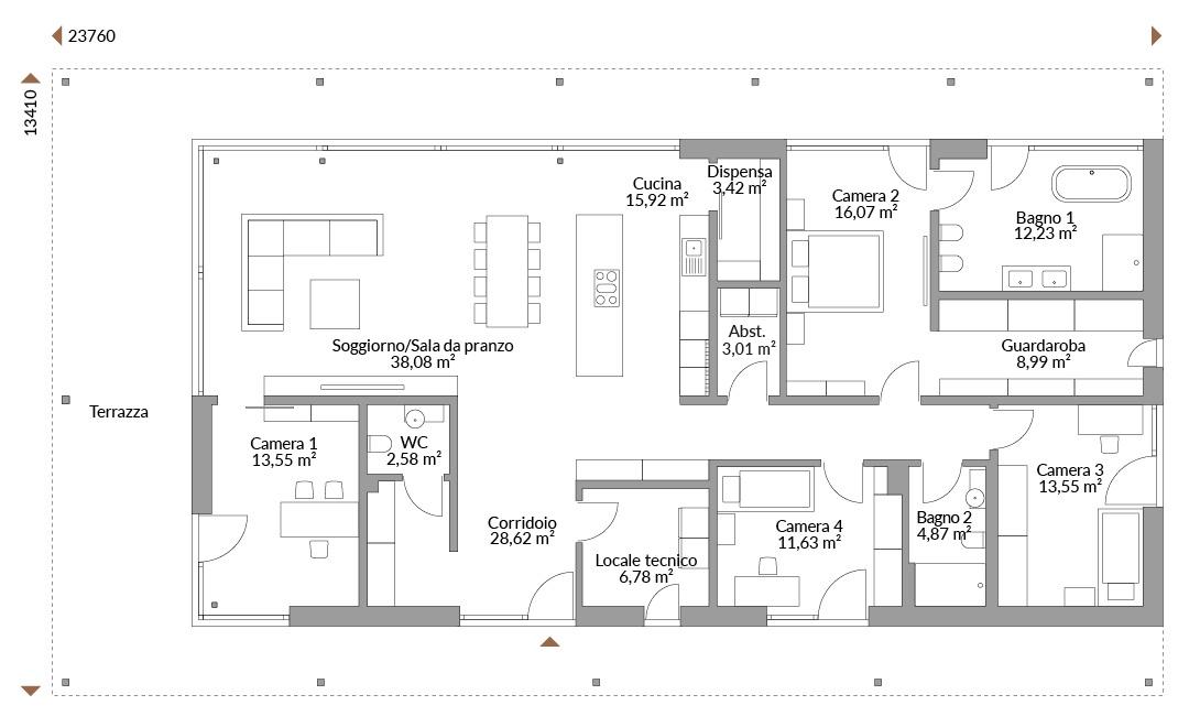
Planimetrie
Planimetrie complete di tutti i piani






I nostri amici e la nostra famiglia pensano che sia una casa meravigliosa. Siamo davvero fortunati ad avere un’abitazione così bella da condividere con i nostri nipoti e con tutta la famiglia. Sì, è la nostra casa per sempre, senza dubbio.